Home  |   Havens  |   PCH  |   Donate  |   Events  |   Calendar  |   Volunteers  |   Careers  |   Contact Us  

anchor anchor

North View Haven   &   South Haven
Independent and Assisted Living


nvhaven

North View Haven & South Haven:

Call 306-933-2011 for Availability. Ask for Martin or Shirley.


Basic Information for Haven Independent/Assisted Living

Warman Mennonite Special Care Home - Havens

Our Facility is owned by the Bergthal and Old Colony Mennonites who effectively oversee all the operational costs and functioning of this facility. You do not have to be German or a Mennonite to enjoy our facility. We offer 2 services per week Sunday and Thursday mornings at 10 am. There are also groups that voluntarily come in to sing or bring a program which is open to all residents to attend if they would like. All activities are posted on the bulletin board and in the monthly calendar.

We offer an Assisted Living Facility with:
South Haven:
  16 - One Bedroom Suites
North View Haven:
  32 - One bedroom Suites
  20 - Sask Housing Units which are subsidized for low income residents.

Each North View room has a storage room approximately 3x6 feet in the basement for any items you would like to store.

Weekly housekeeping is included in the rent which includes:
- Bathroom Cleaned and towels removed and washed
- Bed Sheets removed and washed
- Floors washed
- Garbage removed
Annual Deep Cleaning is mandatory at an extra cost.

We will do your Personal Laundry at an extra fee of $55 per month.

Residents can be in or out of the meal plan month to month.
Guest Cost Per Meal:
     Breakfast $ 8.00
     Lunch      $13.00
     Supper    $12.00

We have a Pendant Alert system that is free of charge. It will alert 2 contacts by text or email when activated and they can then call the resident and decide what action is needed.
Click here for information on Pendants.

Some of the things inside North View Haven:
- Small store on main floor that is open 2 afternoons a week.
- Salon in the Basement that is open 2 days a week.
- An Event Room that can be used for gatherings or Birthday parties. It has a full size fridge and stove and seats 30 people.
- Recreational area in basement with a shuffle board, pool table and couches.
- Sewing room
- Balcony has a Library and games area and puzzling tables.
- Residents have started a Get to Know Your Neighbor group also a games night


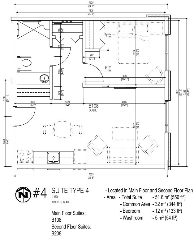
North View Haven Unit Floor Plans
nvhaven


nvhaven


nvhaven


nvhaven


nvhaven


nvhaven

For Facility floor plans click here

  Home  |   Havens  |   PCH  |   Donate  |   Events  |   Calendar  |   Volunteers  |   Careers  |   Contact Us